На капремонт здания под центр «Эрмитаж-Евразия» выделили 186 млн
Речь идет об ОКН на улице Правды

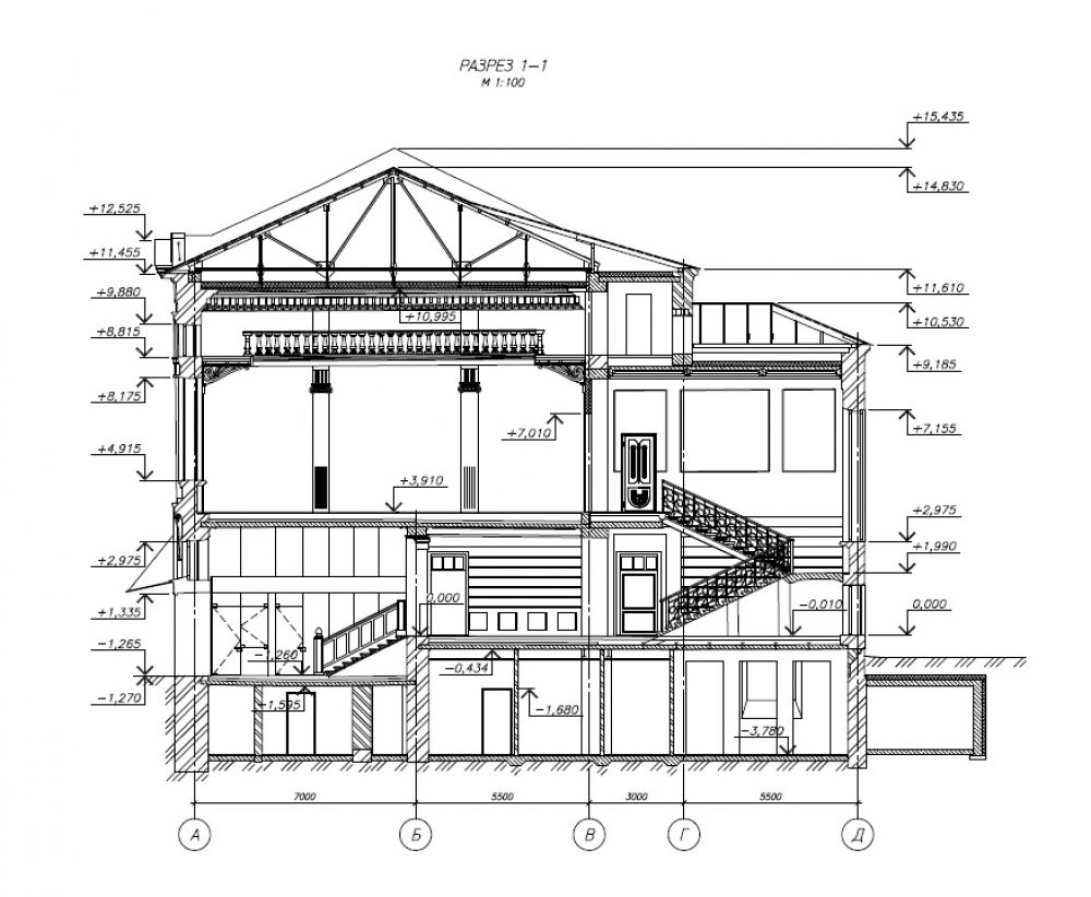
Областной музей ИЗО на сайте госзакупок разместил аукцион на капремонт объекта культурного наследия областного значения «Дума городская». Ранее здание на ул. Правды, 8 принадлежало ОГПУ, там располагался спортзал. В 2020 году было решено передать его музею ИЗО. Общая площадь здания – 1115 кв. метров. Оно является частью городской управы – ОКН регионального значения. После в нем решили организовать центр «Эрмитаж-Евразия». Проект разработало ООО «Научно-производственное предприятие «Рона».
И вот было решено найти подрядчика на капитальный ремонт здания. Цена вопроса - 186 444 919 рублей. До 20 декабря 2024 года необходимо будет привестив порядок фасад, кровлю и все инженерные системы – освещение, отопление, вентиляция, водоснабжение и канализация. В планах украсить фасад, заменить все окна и двери, а также отремонтировать внутреннюю часть здания.
Заявки принимаются до 28 сентября, а уже 3 октября станет известно имя победителя.
Фото: скриншоты с сайта госзакупок
Поля, отмеченные *, обязательны для заполнения
Поля, отмеченные *, обязательны для заполнения
Поля, отмеченные *, обязательны для заполнения
Нажимая кнопку "Отправить", вы даете согласие на обработку персональных данных
Поля, отмеченные *, обязательны для заполнения


